ROOMBOOK
фасад
Требования к оформлению фасада и вывески
Основные планировочные решения
ИНТЕРЬЕР
Основные требования к подбору помещения
требования
ПЛОЩАДИ
Площадь помещения должна быть от 100 кв.м до 120 кв.м;
Минимальная площадь производственного помещения должна быть не меньше 50 кв.м.
Наличие ГВС, ХВС и канализации.
КОММУНИКАЦИИ
МОЩНОСТИ
Мощность 60 кВт для пиццерий с доставкой, для формата «Экспресс» достаточно 40 кВт.
Два раздельных выхода из помещения — загрузочный и гостевой.
ПЛАНИРОВКА
требования к помещению
При поиске помещения под пиццерию необходимо учитывать основные критерии, которые необходимо рассматривать в комплексе

Полный перечень требований читайте в руководстве по согласованию помещения
фасад
1. Требования к оформлению фасада и вывески
Задача фасада пиццерии — привлечь внимание, информировать о типе заведения и пригласить гостей внутрь.
Внешний вид пиццерии в целом и вывеска должны соответствовать требованиям государственных и местных нормативов, вписываться в городскую среду, не ухудшая внешний вид здания и окружающей застройки и территории.

Вывеска — обязательный элемент пиццерии, ее устанавливают в пределах занимаемого помещения или в пределах входной группы пиццерии на архитектурный фриз, либо непосредственно на поверхность стены.
Вывеска содержит фирменное название (Фокс Pizza), фирменный знак, надпись «Пиццерия-доставка».

Все элементы вывески выполняются в виде объемных световых коробов, выполненных в строгом соответствии с оригинальным макетом логотипа. Фирменный знак может использоваться отдельно, либо дублироваться, в зависимости от ситуации.

Яркость подсветки всех элементов должна быть равномерной по всей плоскости вывески с освещенностью не менее 2000 люкс. Цвет подсветки нейтральный 4000 К.
Вывеску необходимо размещать на подготовленной поверхности стены, в уровне перекрытия над входной группой.

Элементы вывески должны формировать цельную композицию оформления фасада и быть выровнены относительно архитектурных элементов фасада здания (фризы, карнизы, пилястры, оконные и дверные проемы и т.п.).
Дополнительные элементы фасада
1. Консольная вывеска или панель-кронштейн применяется как дополнительный элемент выделения пиццерии на протяженных фасадах или вдоль линии застройки для привлечения внимания пешеходного трафика.

2. Вдоль фасада необходимо расположить велопарковку, если это необходимо. А около каждого входа поставить уличную урну.

3. Обязательным элементом оформления фасада является оклейка дверных проемов фирменными наклейками с режимом работы. Наклейка представляет собой вырезные элементы на монтажной пленке.

4. Для привлечения дополнительного трафика можно использовать проектор Gobo для уличной рекламы.
Важно! Согласование наружной рекламы — это обязательная процедура: прежде, чем начинать изготовление любой вывески или другого средства наружной рекламы и информации, необходимо согласовать его с администрацией вашего города. Примеры эскизных проектов и всю необходимую документацию необходимо запросить в комитете по градостроительной политике, т.к. требования для регионов отличаются.
интерьер
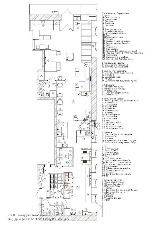
1. Основные планировочные решения

Архитектурные решения зоны для посетителей.
Разработка планировочного решения начинается с определением расположения основных помещений, а именно зоны для посетителей и зоны служебных помещений.

1.1 В зоне для посетителей располагаются следующие помещения: основной зал, тамбур, детская зона (при необходимости), санузлы для посетителей и барная стойка для приема заказов.

1.2 В служебной зоне располагаются такие помещения, как: горячий цех, холодный цех, складская зона, раздевалка для персонала, с/у для персонала, комната для курьеров, холодильная зона.

1.4 Расположением кухни и расстановкой оборудования занимается Технолог с учетом сантехнических норм и пожарной безопасности.

1.5 Основной задачей при проектировании барной стойки для приема заказов является обзор всех входов (как основного входа, так и второстепенного). Барная зона должна располагаться возле глухой стены и соединяться с кухней и моечным отделением столовой посуды. Также бар может соединяться с несущими колоннами. Между рабочей зоной и барными шкафами должно быть расстояние 700-900 мм. Бар должен иметь как минимум один вход в основной зал.

1.6 Ширина входной двери должна быть не менее 1300 мм. Заполнение — закаленное стекло. Ширина основной створки должна быть не менее 900 мм.

1.7 При проектировании тамбура, надоо учитывать его минимальные размеры 1500х2300 мм. Необходимо учитывать требования по доступности для МГН населения СП 59.13330.2016.

1.8 При расстановке мебели необходимо предусмотреть проход не менее 1,2 м для эвакуации. Все двери в помещении должны открываться по направлению к выходу.

1.9 При наличии одного эвакуационного выхода из зала для посетителей в проект закладывать не более 49 посадочных мест.

1.10 В пиццерии кол-во санузлов для посетителей рассчитывается из расчета 1 с/у на каждые 60 мест.
Санузлы для посетителей не делятся на мужские и женские. Санузел обязательно должен иметь общий тамбур. Возможно расположить один экспресс-туалет с писсуарами для мужчин.

2. Формат и концепция дизайна.
Существует три основных формата наших пиццерий — «Фокс Express», «Фокс Family» и фудкорт.
Фокс Family
Пиццерии этого формата имеют большую площадь, которая включает в себя просторный зал для гостей и детскую игровую зону.
При проектировании необходимо предусмотреть места для проведения дней рождений, мастер-классов и т.д.
ФОКС EXPRESS
Предполагается размещение в жилом массиве города с высоким трафиком. Пиццерии в этом формате преимущественно работают на доставку и имеют ограниченную площадь до 100 кв.м. Формат предполагает большую оборачиваемость, меньшее среднее время посещения и большее кол-во посетителей-одиночек. Все это учитывается при проектировании.
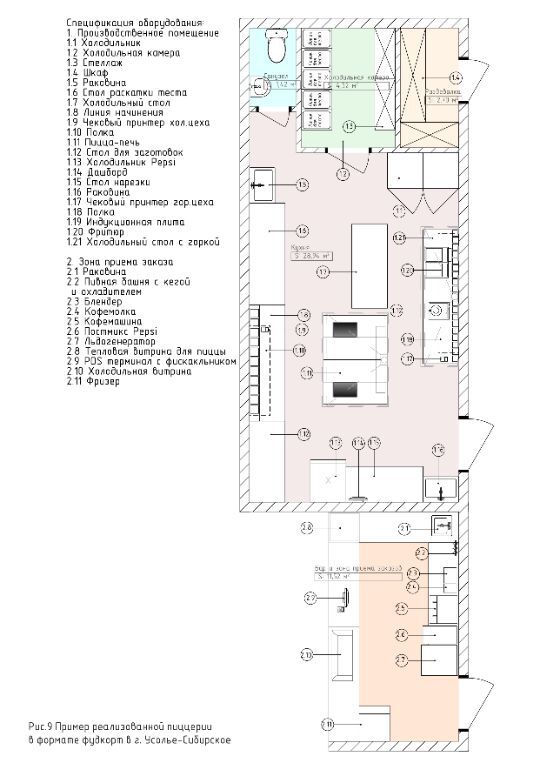
Фудкорт
Формат преимущественно для пиццерий на фудкортах, включает в себя кассовую стойку с холодильной и тепловой витриной. Посадочные места организовывает арендатор, либо используется формат посадки Фокс Express.
3. Отделочные материалы.
Для отделки и оформления пиццерий используем простые натуральные материалы, цветовую схему и решения. Все это создает светлое и просторное пространство для большого потока посетителей.
основные материалы для отделки стен
гипсовый кирпич
вариант 1
Венецианский, 18,5х4,7 см, белый. Для защиты от загрязнений необходимо покрыть лаком с матовым финишем.
Евровагонка
Евровагонка Оптима
12.5х96х2000 мм хвоя с покраской Tikkurila.
Краска Dulux Ultra Strong, база BC для колеровки в яркие и насыщенные цвета. Номер колера — 48YR26/519
Покраска
Декоративная штукатурка Dufa Modellierputz цвет белый. Необходимо защитное покрытие в виде защитно-декоративного лака-воска Parade Ice Laguna
декоративная штукатурка
керамическая плитка
Metro White 01, 10х30 см, использовать затирку Ceresit «Антроцит».
гипсовый кирпич
вариант 2
Для акцентных стен можно использовать фотообои.
Фотообои
Венецианский, 18,5х4,7 см, светло-коричневый. Для защиты от загрязнений необходимо покрыть лаком с матовым финишем.
основные материалы для напольных покрытий
керамогранит
вариант 1
Керамогранит цемент стайл 450х450 мм.
Затирка Ceresit «Антроцит».
керамогранит
вариант 1
Керамогранит цемент стайл 450х450 мм.
Затирка Ceresit «Антроцит».
4. Отделочные материалы для потолков.
Потолки могут быть как открытыми с покраской в белый цвет, так и натяжными из белого матового сатина.
В случае открытых потолков все видимые инженерные коммуникации прокладываются строго параллельно и перпендикулярно стенам с последующей покраской в цвет потолка.
освещение
подвесной светильник вариант 1
Используется для акцентного освещения (например, над барной стойкой)
Цветовая температура — 4000 К
Светильник Nowodvorski Hemisphere. Используется для создания дополнительного уюта над столами.
Цветовая температура — 6500 К
подвесной светильник вариант 2
встраиваемый
светильник
Используется для акцентного освещения (например, для освещения элементов декора)
Цветовая температура — 4000 К
Потолочный софит
Используется для фонового освещения.
Цветовая температура — 4000 К
5. Меблировка
В пиццерии посадка должна быть разнообразной. Должны присутствовать комплекты от 2-4 персон до больших компаний от 6 персон. Планировка зависит от формата пиццерии.

Столешница у столов ЛДСП 18 мм, цвет «Дуб Вотан». Возможно использование щита сосны или лиственницы.
Подстолья у всех столов металлическое из трубы 40х40 мм с толщиной стенки 2 мм с покраской порошковой краской в черный матовый цвет.
вариант 1
Используется для посадки от 6 гостей, 1500 мм
вариант 2
Используется для посадки 2-х гостей, 700х700 мм
вариант 3
Используется для посадки 4-х гостей, 700х1200 мм
Стулья
стул вариант 1
Стулья Eames оранжевые с черными металлическими ножками, которые должны сочетаться с металлическими подстольями.
Стулья на заказ с черными деревянными ножками, которые должны сочетаться с металлическими подстольями.
стул вариант 3
стул вариант 3
Стулья на заказ с черными деревянными ножками, которые должны сочетаться с металлическими подстольями.
Стулья Eames оранжевые с черными металлическими ножками, которые должны сочетаться с металлическими подстольями.
стул вариант 2
декор
Лопатки
Вырезные элементы из тонированной фанеры 5 мм, изготовляются на заказ.
Печать постеров на холсте.
постеры
Декор из пластика
Фирменные элементы из ПВХ 3 мм с ламинированием. Изготовляются на заказ.
Неоновые надписи и элементы для создания атмосферы.
неон
Хештег, фигурка лиса, коробка
Фирменные элементы из ПВХ 3 мм с ламинированием и контурной подсветкой контражуром. Изготовляются на заказ.
Готовые эскизы предоставляет франшиза. Для росписи используйте белую акриловую моющуюся краску.
роспись
6. Зона приема заказов
В зависимости от формата пиццерии и от геометрии помещения кассовый прилавок может отличаться по наполнению и размерам.
Обязательными элементами являются:
1. POS терминал, чековый принтер и терминал оплаты
2. Основное меню и карта бара для гостей
3. Тейбл-тенты с рекламными материалами
4. ТВ-борды от 2-х штук
5. Холодильная, либо тепловая витрина
6. Пивная башня
дополнительные элементы
Дополнительные дисплей
Дисплей покупателя рядом с POS-терминалом для дополнительной трансляции рекламных материалов
Менажница с держателем тейбл-тента из тонированной фанеры 5 мм. Делается под заказ.
Менажницы
Меню
Напечатанные и заламинированные основное меню и карта бара. Актуальное меню предоставляет франшиза.
Пластиковое изделие из ПВХ 5 мм с ламинированием, для понимания соотношения размеров пицц
Размеры пицц
Коробки для грипперов
Изготовляемые на заказ из склеенной фанеры номерки заказов.
Изготовляемые на заказ из склеенной фанеры номерки заказов.
Номерки
ценники для витрин
Изготовляемые на заказ из склеенной фанеры подставки с гравировкой и ценник.
Различные информационные таблички для ресторана
Таблички информационные
7. Детская зона
Оформление и наполнение детских игровых зон зависит от геометрии помещения и площади. Основными обязательными элементами являются:
1. ТВ
2. Стол со стульями
3. Стеллаж для хранения игрушек
4. Грифельная доска для рисования
5. Напольное покрытие из резиновой плитки, либо искусственного газона
6. Ограждение в виде небольшого забора из дерева (изготавливается на заказ)

Если позволяет площадь, то возможно размещение детского игрового лабиринта по индивидуальному проекту от подрядчиков.
комплектация детской зоны
Детский стул
В кол-ве 4 штуки.
Качалка
Палатка
Палатка. Приобретается по желанию.
Для рисования мелом и фломастерами.
Доска-мольберт
Стол
Приобретается 1 шт.
Табурет-лестница для с/у
Лестница
светильник вариант 2
Игрушки приобретаются на усмотрение франчайзи. Обязательное условие — легко моющиеся материалы.
Игрушки
Светильник вариант 1
В зависимости от формата пиццерии приобретается от 1 шт. на зал.
детский стул
ЕСЛИ У ВАС ВОЗНИКЛИ ВОПРОСЫ:
Отправьте нам письмо по электронной почте:
art@fox-pizza.ru
Или позвоните по телефону:
+7 3952 50 38 98